For rent Modern 2-Bedroom Apartment in Primăverii with Parking Primaverii, Bucharest


ID: 37174
3 July 2025 37174
Sorry, this property is
No longer available
View similar listings Close
Description

Fully Furnished 90 sqm Residence in Prestigious Primăverii Area

2-Bedroom Apartment on Primăverii Boulevard – 90 sqm, Fully Furnished, Parking Included

2 Bedrooms, 2 Bathrooms + Guest WC in Exclusive Location

Discover an elegant and spacious apartment located in one of Bucharest’s most prestigious neighborhoods – Primăverii Boulevard. Situated on the 2nd floor of a modern building (with basement, ground floor and 5 upper levels), this fully furnished property stands out through its refined finishes, contemporary design, and highly functional layout tailored for everyday comfort.

Functional Layout & Classic Design

  • Bright and generous living room with relaxation and dining area
  • Two spacious, fully furnished bedrooms
  • Two elegant bathrooms – one with bathtub, one with walk-in shower – plus an additional guest toilet
  • Fully equipped, separate kitchen with efficient storage solutions
  • Private balcony – ideal for enjoying your morning coffee
  • Well-organized hallways and storage areas

Features & Benefits

  • Fully furnished with quality, classic-style furniture
  • Air conditioning, dishwasher, TV, and modern appliances included
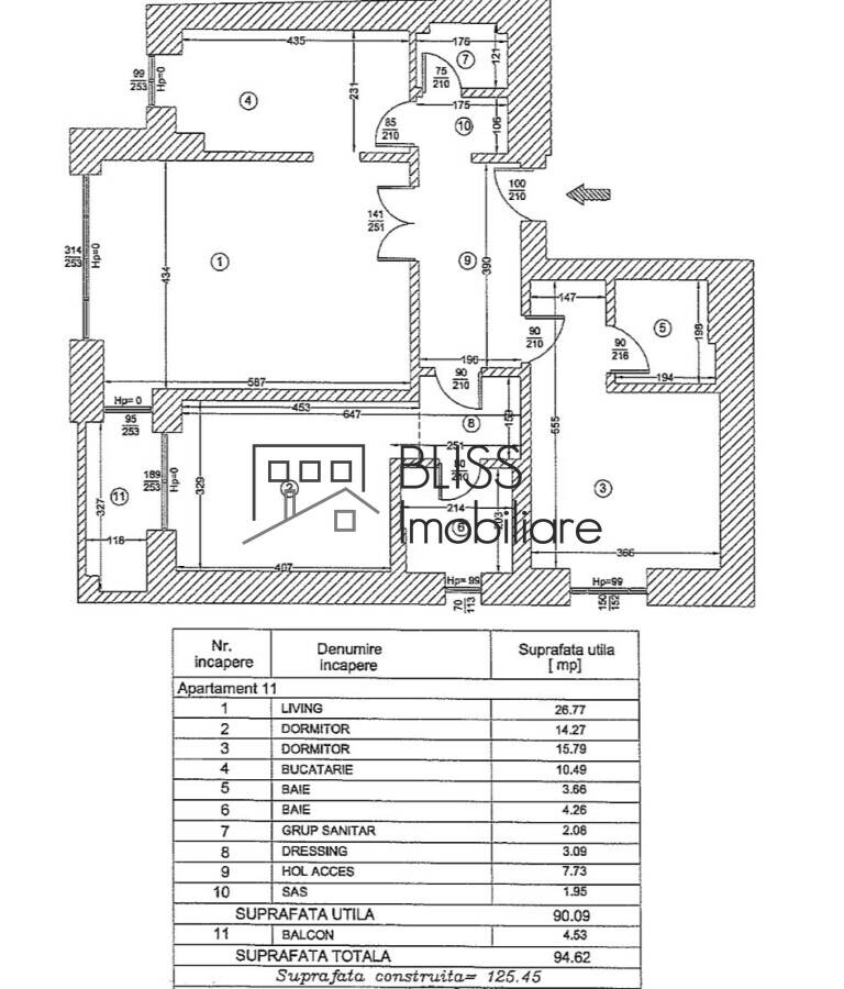
  • Built surface of 125 sqm
  • One underground parking space included – a true asset in this sought-after area
  • Located on the 2nd floor of a well-maintained, secure building

Premium Location – Heart of the Primăverii District

Located in one of the most exclusive areas in Bucharest, this apartment offers:

  • Quick access to Herăstrău Park, Șoseaua Nordului, and Kiseleff
  • Proximity to top restaurants, cafés, international schools, and embassies
  • Easy access to public transportation (Aviatorilor metro station just minutes away)
  • A quiet, green neighborhood – perfect for a refined lifestyle
Property details
State Finished
Rooms no. 3
Useable surface 90 m² (29 EUR / m²)
Constructed surface 125 m² (21 EUR / m²)
Apartment type Apartment
Type of rooms Independent
Type of comfort Comfort 1
Bedrooms no. 2
Kitchens no. 1
Bathrooms no. 2
Toilets no. 1
Building type Block
Year built 2014
Config 2S+P+5
Floor 2
Balconies no. 1
Elevator Yes
Parking inside 1
Amenities
Equipped kitchen
Dishwasher
Furnished
Private heating
Air conditioning

REALTOR®️ | SRS®️ | PSA®️

BLISS Imobiliare - Real Estate passion since 2006!

Embark on a journey with BLISS Imobiliare, a trailblazer in the Romanian real estate scene since 2006. Our unwavering commitment to excellence and high professional standards has earned us an outstanding reputation in the industry.

At BLISS Imobiliare, our dedicated team collaborates closely with both real estate buyers (and tenants) and sellers, specializing in single-unit transactions. Whether you're seeking your dream home or looking to sell a property, our personalized approach ensures a smooth and satisfying experience.

For investors eyeing development or speculative opportunities, BLISS Imobiliare is your strategic partner. Together, we can build portfolios of income-generating assets, maximizing potential in the ever-evolving real estate landscape.

Discover the BLISS difference as we apply a comprehensive and integrated approach to meet diverse real estate needs. As a seasoned boutique real estate consultant in Romania, our operation since 2006 has equipped us with extensive knowledge of real estate development and trends, ensuring that your property journey is guided by expertise and insight.

If this propety is not exactly what you are looking for contact us and we will source what you are looking for. We collaborate within an extensive network of real estate professionals who will assist in finding you the property you want!

BLISS Imobiliare is the real estate division of:

Management Services BLISS SRL

Fiscal code RO18268740 | J23/6511/2023

Please read the Terms and Conditions for collaborating with BLISS Imobiliare and for using this website.
2-Bedroom Apartment In Primaverii | Furnished | Parking, Bucharest | Bliss Imobiliare contact Violetta Tudorache
Violetta Tudorache
Call us Similar

Similar Listings


for rent 3 bedroom duplex apartment #45259 - BLISS Imobiliare ID: 45259 - 16 March 2026

For rent 3 bedroom duplex apartment
Duplex Forest Residence Boutique, Iancu Nicolae, Bucharest / Ilfov

2,700 EUR +VAT / month
  • Duplex apartment
  • Floor 3 / 1S+P+3+M
  • 4 Rooms
  • In block
  • 174 m²
  • Built 2017
for rent 2 bedroom duplex apartment #47438 - BLISS Imobiliare ID: 47438 - 16 March 2026

For rent 2 bedroom duplex apartment
Lakeview Condominium, Nordului, Bucharest

2,500 EUR / month
  • Duplex apartment
  • Floor 3 / 1S+DS+HP+5
  • 3 Rooms
  • In block
  • 192 m²
  • Built 2004
for rent 2 bedroom apartment #37178 - BLISS Imobiliare ID: 37178 - 16 March 2026

For rent 2 bedroom apartment
Primaverii, Bucharest

2,600 EUR +VAT / month
  • Apartment
  • Floor 4 / 2S+P+5
  • 3 Rooms
  • In block
  • 140 m²
  • Built 2014