Willbrook Zodiac Compound

Iancu Nicolae, Bucuresti / Ilfov

Anul: 2004
Descriere

Zodiac Compound is situated in Pipera, an ideal location which is offering easy access to Bucharest via the ring road , Bucharest Baneasa airport, Otopeni International airport, Baneasa Commercial Area and offices area from Baneasa.

The compound is very close to the British School and American School.    

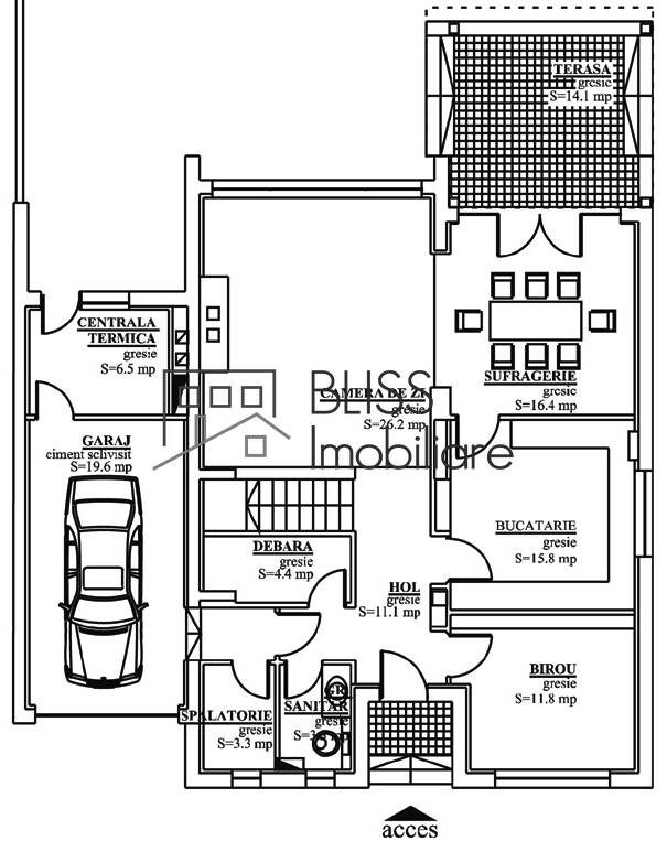
The residential complex offers one of the most luxurious and comfortable living solutions on the Romanian Residential market, especially created for the most demanding consumers and their families.    

The villas emphasize the Willbrook spirit and talent to harmoniously combine a special location with high-class architecture and high-quality design, comfortable spaces offering excellent attention to details; all these are complemented with private exclusive services, whose values are measured by quality and innovation.    

Zodiac Compound Location Voluntari, Pipera Land area (sqm) 10,000 Built area (sqm)6,592  

No. Of villas 18 villas, 

Vă rugăm să citiți Termenii și Condițiile pentru colaborarea cu BLISS Imobiliare și pentru utilizarea acestui site web.
Violetta Tudorache
Violetta
Tudorache
Isfahan Doekhie
Isfahan
Doekhie
Sună-ne