De inchiriat apartament 2 camere Dorobanti, Bucuresti

990 EUR / lună
ID: 7852
14 October 2025 7852
Descriere

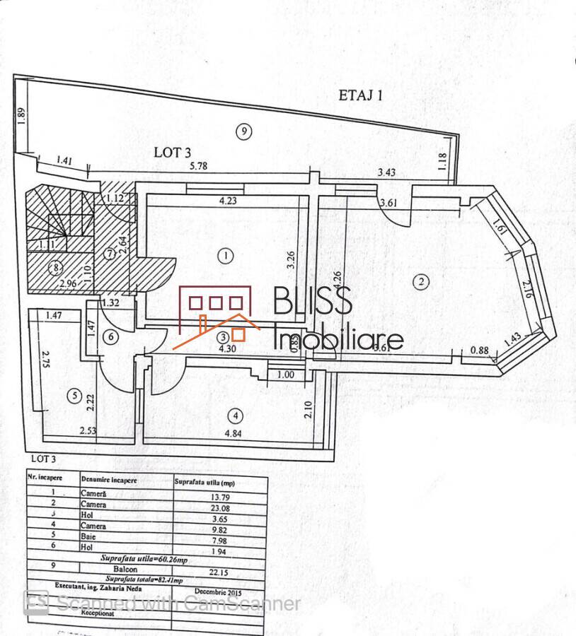
Descoperiți acest apartament generos, situat la etajul 1 al unei vile din prestigioasa zonă Dorobanți-Floreasca. Cu o suprafață totală de 100 mp, acest apartament decomandat este ideal pentru diverse utilizări, cum ar fi birouri, cabinete sau ateliere.

Recent renovat, apartamentul impresionează prin cele 3 camere spațioase, care oferă 65 mp utili. În plus, dispune de un balcon-terasă de 22 mp, perfect pentru momentele de relaxare. Toate utilitățile necesare sunt incluse, iar apartamentul este dotat cu aer condiționat pentru a asigura confortul pe tot parcursul anului.

Localizat în inima uneia dintre cele mai căutate zone din București, acest apartament este alegerea perfectă pentru afaceri, oferind un spațiu funcțional și confortabil într-un cadru elegant.

Detalii proprietate
Stare Finalizat
Nr. camere 2
Suprafață utilă 60 m² (17 EUR / m²)
Suprafață construită 82 m² (12 EUR / m²)
Tipul apartamentului Apartament
Anul renovării 2008
Compartimentare Decomandate
Confort Delux
Nr. dormitoare 1
Nr. bucătării 1
Nr. băi 1
Tipul clădirii Casa
An construcție 2000
Dispunere DS+HP+2
Etaj 1
Nr. balcoane 1
Clasa de risc seismic Neclasificat
Întreținere spații comune 100.00 EUR
Facilități
Bucătărie echipată
Semi-mobilat
Încălzire centrală proprie
Potrivit pentru birou
Aer condiționat

REALTOR®️ | SRS®️ | PSA®️

BLISS Imobiliare - Imobiliare cu pasiune din 2006!

BLISS Imobiliare este activă în industria imobiliară din România inca din anul 2006. De atunci am dobândit o reputație excelentă gratie standardelor noastre profesionale înalte și a angajamentului nostru față de clienți.

Compania și colegii noștri lucrează îndeaproape cu proprietarii și cu toate persoanele care au o nevoie imobiliara, precum și cu investitorii, avand o abordare completa și integrată pentru a satisfacerea clientilor. În calitate de consultant imobiliar profesionist și consacrat în România, am dobândit de-a lungul timpului cunoștințe extinse despre dezvoltarea imobiliară și despre tendințele pietei din România.

Daca nu ai gasit inca ceea ce iti doresti, te rugam contacteaza-ne si revenim cu oferte personalizate in cel mai scurt timp. Colaboram in cadrul unei retele de profesionisti in imobiliare care te va asista sa gasesti proprietatea pe care ti-o doresti.

BLISS Imobiliare este divizia de Imobiliare din cadrul SC Management Services BLISS SRL

Cod Fiscal RO18268740 | J09/11/09.01.2006

Vă rugăm să citiți Termenii și Condițiile pentru colaborarea cu BLISS Imobiliare și pentru utilizarea acestui site web.
Apartament de Inchiriat Dorobanti | Primaverii | Kiseleff | Aviatorilor - 2 Camere - ID:7852 | Bliss Imobiliare contact Violetta Tudorache
Violetta Tudorache
Sună-ne Similare

Oferte Similare


de inchiriat apartament 3 camere #101294 - BLISS Imobiliare ID: 101294 - 9 December 2025

De inchiriat apartament 3 camere
Dorobanti (Piata), Bucuresti

890 EUR / lună
  • Apartament
  • Etaj 5 / P+8
  • 3 Camere
  • In bloc
  • 72 m²
  • Renovat 2015
de inchiriat apartament 2 camere #102563 - BLISS Imobiliare ID: 102563 - 9 December 2025

De inchiriat apartament 2 camere
Atlas Residence Aviației, Aviatiei Nord, Bucuresti

900 EUR / lună
  • Apartament
  • Etaj 7 / 2S+P+9
  • 2 Camere
  • In bloc
  • 64 m²
  • Construit 2022
de inchiriat apartament 2 camere #83480 - BLISS Imobiliare ID: 83480 - 9 December 2025

De inchiriat apartament 2 camere
WaterFront Residence, Pipera Sud, Bucuresti / Ilfov

890 EUR / lună
  • Apartament
  • Etaj 1 / DS+HP+2
  • 2 Camere
  • In bloc
  • 90 m²
  • Construit 2020