De vanzare apartament 3 camere Piata Romana, Bucuresti

ID: 56768
3 April 2019 56768
Ne pare rău, această proprietate
Nu mai este disponibilă


Închide
Descriere

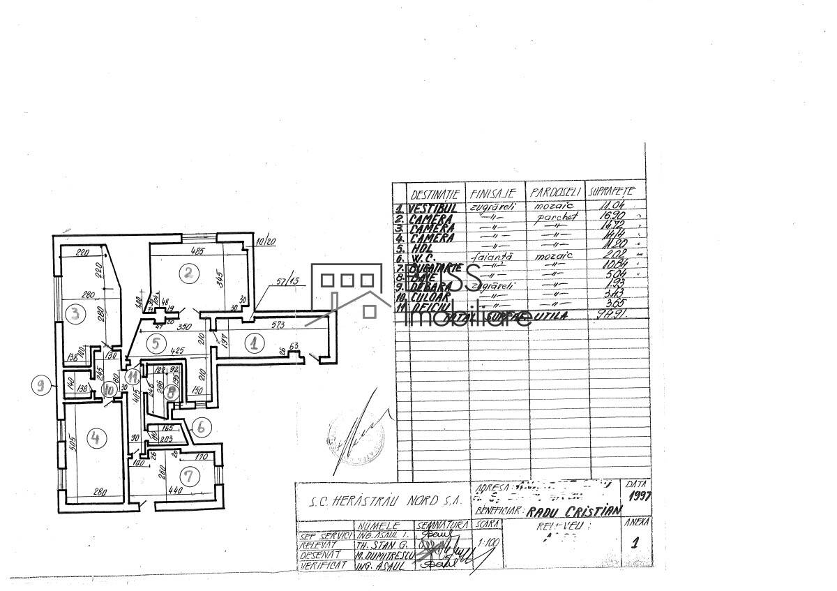
Apartament cu 3 camere, situat central, zona Bulevardului Magheru/Atheneul Roman

Apartamentul are o suprafata utila de 95 mp, 2 dormitoare, living, bucatarie, baie si toaleta de serviciu.

Renovat integral dupa vara 2018

Apartamentul are acces la o terasa generoasa, care nu este in proprietate, insa unicul acces se face din apartament.

Detalii proprietate
Stare Finalizat
Nr. camere 3
Suprafață utilă 95 m² (1.158 EUR / m²)
Tipul apartamentului Apartament
Anul renovării 2018
Compartimentare Decomandate
Confort Confort 1
Nr. dormitoare 2
Nr. bucătării 1
Nr. băi 1
Nr. toalete 1
Tipul clădirii Bloc
An construcție 1935
Dispunere 1S+P+7
Etaj 7
Nr. balcoane 1
Lift Da
Clasa de risc seismic Rs II
Facilități
Nemobilat
Încălzire centrală proprie
Potrivit pentru birou

REALTOR®️ | SRS®️ | PSA®️

BLISS Imobiliare - Imobiliare cu pasiune din 2006!

BLISS Imobiliare este activă în industria imobiliară din România inca din anul 2006. De atunci am dobândit o reputație excelentă gratie standardelor noastre profesionale înalte și a angajamentului nostru față de clienți.

Compania și colegii noștri lucrează îndeaproape cu proprietarii și cu toate persoanele care au o nevoie imobiliara, precum și cu investitorii, avand o abordare completa și integrată pentru a satisfacerea clientilor. În calitate de consultant imobiliar profesionist și consacrat în România, am dobândit de-a lungul timpului cunoștințe extinse despre dezvoltarea imobiliară și despre tendințele pietei din România.

Daca nu ai gasit inca ceea ce iti doresti, te rugam contacteaza-ne si revenim cu oferte personalizate in cel mai scurt timp. Colaboram in cadrul unei retele de profesionisti in imobiliare care te va asista sa gasesti proprietatea pe care ti-o doresti.

BLISS Imobiliare este divizia de Imobiliare din cadrul SC Management Services BLISS SRL

Cod Fiscal RO18268740 | J09/11/09.01.2006

Vă rugăm să citiți Termenii și Condițiile pentru colaborarea cu BLISS Imobiliare și pentru utilizarea acestui site web.
Apartament de Vanzare KM 0 | Ultracentral - 3 Camere - ID:56768 | Bliss Imobiliare contact Violetta Tudorache
Violetta Tudorache
Sună-ne